Casa indipendente in vendita

Mazara Del Vallo, Via Nicol Copernico
€ 249.000
10 locali 10 locali
360 Mq 360 Mq
6 bagni 6 bagni

Casa indipendente in vendita

Mazara Del Vallo, Via Nicol Copernico

Descrizione annuncio

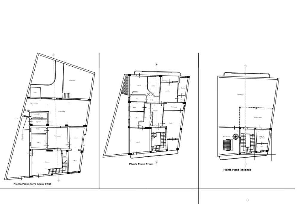
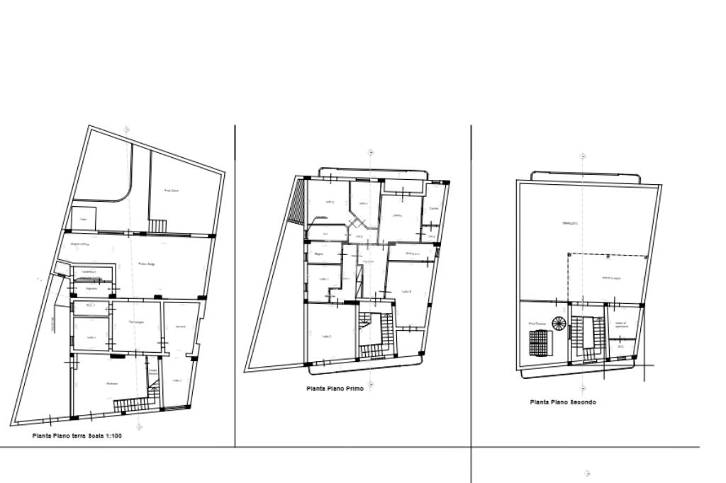
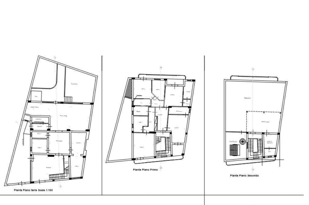
In via Copernico proponiamo in vendita un’interessante soluzione indipendente su più livelli, recentemente ristrutturata e arricchita dalla presenza di impianto fotovoltaico, un valore aggiunto in termini di comfort ed efficienza energetica.

L’immobile colpisce fin da subito per la sua versatilità, essendo suddiviso in due abitazioni indipendenti, ideali sia per una famiglia numerosa sia per chi desidera unire abitazione e investimento.

Al piano terra, la casa accoglie con due ingressi separati, uno dall’androne e uno dal cortile. Gli spazi interni sono ben distribuiti e comprendono un ingresso, due camere da letto, un disimpegno, due servizi e una luminosa cucina/soggiorno open space. Da qui si accede direttamente a un giardino riservato, perfetto per trascorrere momenti di relax all’aperto. A rendere l’ambiente ancora più caldo e conviviale è la presenza di un forno a legna all’interno della cucina.

Salendo tramite scala interna si raggiunge il primo piano, dove troviamo la seconda unità abitativa, attualmente già adibita a B&B. Questa soluzione offre ampi spazi e si compone di ingresso, cinque camere da letto, sala da pranzo, cucinotto, tre servizi e due balconi, risultando ideale per attività ricettive o per accogliere più nuclei familiari.

Al secondo piano, infine, troviamo una comoda terrazza, arricchita da una stanza e un servizio, uno spazio perfetto da vivere nelle belle stagioni o da personalizzare secondo le proprie esigenze.

Un immobile pronto all’uso, ristrutturato con cura, che rappresenta una vera opportunità per chi cerca una casa indipendente con spazi generosi o un investimento già avviato nel settore turistico.

Mostra tutto

Nelle vicinanze

Trasporto pubblico Trasporto pubblico
stazione di Mazara del Vallo
stazione di Mazara del Vallo
1,5 Km
Mazara del Vallo
Mazara del Vallo
1,6 Km
Borsellino / La Malfa
Borsellino / La Malfa
470 m
Falcone / Venere
Falcone / Venere
580 m
Trasporto pubblico
2,3 Km
Scuole Scuole
Scuole
950 m
Liceo classico "Gian Giacomo Adria"
1,0 Km
Santa Gemma
1,1 Km
Istituto Professionale Statale per l'Industria e l'Artigianato "Gian Giacomo Adria"
1,2 Km
Liceo scientifico "Gian Pietro Ballatore"
1,4 Km
Farmacia Farmacia
Parafarmacia Giacalone Dottor Maria Concetta
410 m
Lenzi Valeria
790 m
La Piccola Birba Sanitaria
980 m
Grimaudo Pietro
1,1 Km
Licari Maria Luisa & C. s.n.c.
1,4 Km
Ospedali Ospedali
Presidio ospedaliero Abele Ajello
1,1 Km
Supermercati Supermercati
Supermercati
640 m
Supermercato Eurospar
750 m
MD Discount
860 m
6 Store
900 m
Costo Zero
1,0 Km
Negozi Negozi
Solo D.G.
430 m
Negozi
660 m
Pane & Dolcezze
770 m
Semaforo Rosso
830 m
Le Bontà Siciliane
930 m
Bar Bar
Costa Ovest Club
1,1 Km
Art Café
1,7 Km
Bar
1,8 Km
Ristoranti Ristoranti
Pizza e Vai La Sfiziosa
960 m
Ristorante del Pescatore
1,0 Km
Al pesciolino d'oro
1,3 Km
San Vito
1,4 Km
La Fenice
1,4 Km
Mostra tutto

Caratteristiche

Rif.:
61172413
Piano:
1 di 3 (Piano su più livelli)
Balconi:
2
Terrazzi:
2
Camere da letto:
8
Arredamento:
Assente
Mostra tutto
Prezzo Prezzo
€ 249.000
Rata mutuo Rata mutuo
€ 1.156 / mese
Proponi il tuo prezzoProponi il tuo prezzo
Immobile valutato con T·Valuta

Classe Energetica

A3
A3
A3
A3
A3
A3
A3
A3
A3
EP globale non rinnovabile:
43.52 kW h/m² anno
EP globale rinnovabile:
9.40 kW h/m² anno
EP invernale del fabbricato:
EP estiva del fabbricato:
Anno di costruzione:
1960
Riscaldamento:
Autonomo
Tipo impianto:
Ad aria
Tipo alimentazione:
Pannelli

Ti interessa visionare l'immobile?

Fissa un appuntamento  Fissa un appuntamento

Richiedi informazioni

Clicca su Leggi per aprire l'informativa
* Questi campi sono obbligatori

Calcola il tuo mutuo

Semplice e senza impegno
Anticipo

( % )
Mutuo

( % )

pochi semplici passi

inserisci i tuoi dati
Questionario completato
Grazie per aver richiesto un appuntamento senza impegno con un nostro Consulente del Credito e Assicurativo.

Hai inserito correttamente tutti i dati necessari e a breve riceverai una e-mail con un link da convalidare per inviare i tuoi dati.
Affiliato
Studio Mazara Srl
Via Vittorio Veneto , 140 91026 Mazara Del Vallo (TP)

Il nostro staff


  • Salma Zahi
    Collaboratrice

  • Tancredi Giambertone
    Affiliato
Via Vittorio Veneto , 140 91026 Mazara Del Vallo (TP)
Zona: Mazara Del Vallo
Mostra su mappa
Affiliato
Studio Mazara Srl
Via Vittorio Veneto , 140 91026 Mazara Del Vallo (TP)

2026 Tecnocasa Franchising S.p.A. - P. IVA 08365160152 - Via Monte Bianco 60/A 20089 Rozzano (MI). Ogni agenzia ha un proprio titolare ed è autonoma. Privacy policy | Policy utilizzo | Cookie policy